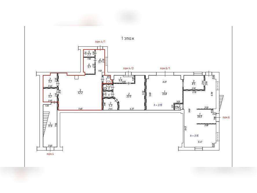
Продажа помещения различного назначения, Железногорск, Советской Армии улица, д.зд44, Красноярский край
- Регион
- Красноярский край
| Адрес | Железногорск, Советской Армии улица, д.зд44Объект на карте |
- Этаж
- 1 этаж в 2-этажном доме
- Общая площадь
- 67.30 м2
- Дата обновления
- 26.04.2026
- Дата размещения
- 20.12.2025
В процедуре банкротства продается нежилое помещение общей площадью 67,3 на 1 этаже административного здания. Отлично подойдет для размещения офиса любой организации. Если вы заинтересованы в приобретении этого объекта, свяжитесь со мной через чат на Портале DA или по телефону, ответить Вам сможем в будние дни с 9-00 до 17-00 МСК+4. Предлагаем воспользоваться услугами профессионального агента для приобретения имущества с торгов.








