Аренда производственно-складского помещения, Красноярск, Северное ш., ВД17 к., Красноярский край
- Регион
- Красноярский край
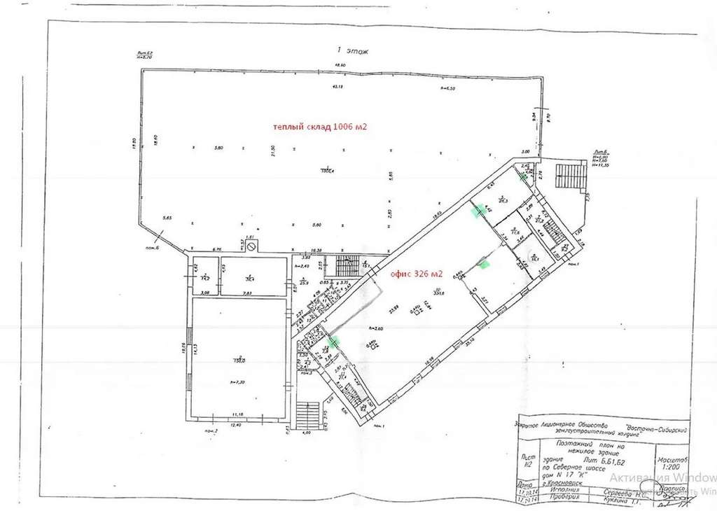
| Адрес | Красноярск, Северное ш., ВД17 к.Объект на карте |
- Этаж
- 1 этаж в 3-этажном доме
- Общая площадь
- 1006.00 м2
- Дата обновления
- 27.04.2026
- Дата размещения
- 25.03.2026
Сдается в аренду качественное складское помещение общей площадью 1006 м2 от собственника здания. Идеальное расположение на первой линии Северного шоссе обеспечивает высокую транспортную доступность и отличную видимость для вашего бизнеса.
Преимущества объекта:
Теплый и подготовленный склад:
Наличие отопления и вентиляции для комфортного хранения грузов.
Высота потолков 6,5 метров — эффективное использование стеллажей.
Естественное и искусственное освещение по всей площади.
Холодное водоснабжение.
Выгодные условия аренды:
Арендатор оплачивает только электроэнергию. Все остальные эксплуатационные расходы (отопление, вода, охрана, уборка территории) берем на себя.
Электроснабжение: есть возможность увеличения мощности под ваши нужды.
Логистика и безопасность:
Удобный въезд с двух сторон, просторная асфальтированная территория для маневрирования большегрузного транспорта.
Круглосуточное видеонаблюдение по всему периметру.
Наличие сигнализации в помещении.
Соседство:
В этом же здании уже успешно работают крупные строительные, торгующие и транспортные компании — проверенное место для складской и логистической деятельности.
Звоните, чтобы организовать просмотр в удобное для вас время!
Преимущества объекта:
Теплый и подготовленный склад:
Наличие отопления и вентиляции для комфортного хранения грузов.
Высота потолков 6,5 метров — эффективное использование стеллажей.
Естественное и искусственное освещение по всей площади.
Холодное водоснабжение.
Выгодные условия аренды:
Арендатор оплачивает только электроэнергию. Все остальные эксплуатационные расходы (отопление, вода, охрана, уборка территории) берем на себя.
Электроснабжение: есть возможность увеличения мощности под ваши нужды.
Логистика и безопасность:
Удобный въезд с двух сторон, просторная асфальтированная территория для маневрирования большегрузного транспорта.
Круглосуточное видеонаблюдение по всему периметру.
Наличие сигнализации в помещении.
Соседство:
В этом же здании уже успешно работают крупные строительные, торгующие и транспортные компании — проверенное место для складской и логистической деятельности.
Звоните, чтобы организовать просмотр в удобное для вас время!








